Contactez nous
02 28 49 64 33
15 rue Monselet
44 000 NANTES
23 bvd Amiral Courbet
44 000 NANTES


Espace client

Appartement T3 proche centre ville avec balcon + Parking + cave

Appartement T3 proche centre ville avec balcon + Parking + cave 44000, Centre Ville

  • Appartement
ID: #484-5537591
A vendre 296500 €

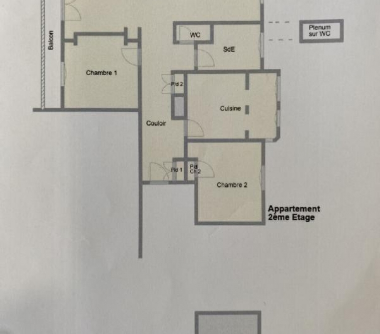
Rue Marie Anne du Bocage à NANTES, au 2ème étage de la résidence avec ascenseur, grand appartement T3 de 94m² avec balcon au calme, à deux pas du centre ville et de toutes les commodités. Le logement se compose d'une entrée avec dégagement, d'une cuisine indépendante dînatoire A/E, d'une belle pièce de vie salon/séjour proche de 40m², de deux chambres avec placard, d'une salle d'eau et d'un WC. Plusieurs espaces de rangement. Appartement sain qui nécessite juste des travaux de rafraîchissement dont cuisine pour remise au goût du jour. A noter que l'ensemble des menuiseries double vitrage sont récentes. Belle luminosité traversante avec une exposition plein sud côté rue. Chauffage collectif. Une place de parking couverte et une cave complètent le bien. Local à vélo dans l'immeuble. Parties communes propres et biens entretenues. Bon potentiel pour cet appartement aux volumes généreux. Contact Hervé MOREL : 06.51.51.20.89Les informations sur les risques auxquels ce bien est exposé sont disponibles sur le site Géorisques : www.georisques.gouv.fr

Résumé

Surface
94 m²
Chambres
2
Salles de bain
Nb pièces
3
Surface terrain

Détails du bien

  • Etat général : NC
  • Année construction : 1965
  • Mode chauffage : NC
  • Type chauffage : collectif
  • Chauffage : NC
  • Type stationnement : extérieur
  • Alarme
  • Fibre
  • Visio
  • Jardin



D

D

Consommation annuelle : 224 kWhEp/m²/an

Contact

RECHERCHER